YAATOU #2

Description du bien immobilier

Les espaces sont accueillants. Les volumes sont illimités et les panoramas sont infinis. Parce que vous partagez votre conception du confort et du service de qualité avec ceux qui vous aiment

Espaces Communs :

– 2 piscines communes dont une avec un bassin de 25 m
– Salle de gym
– Salle de jeux
– Garderie
– Management Office

En Bref

ID de la propriété :
741
Statut du bien :
Vente
Type de bien :
Emplacement :
Corniche, Fann, cheikh anta diop, mermoz, Dakar, Senegal
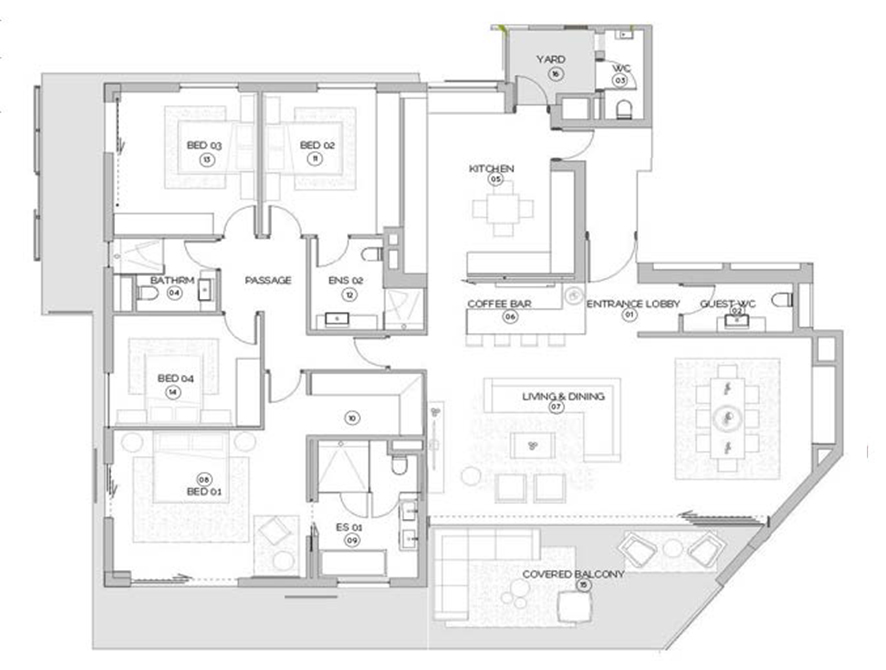
Chambres :
4
Salles de bains :
2
Surface :
264.00 m²
Aménagements :

Carte

Contacter votre commercial