ÉLIMANE
Description du bien immobilier
Parce que nos efforts et nos convictions sont adossés à une forte idée de la fidélité et à la permanence de la mémoire, moteur du devenir.
Espaces Communs :
– 2 piscines communes dont une avec un bassin de 25 m
– Salle de gym
– Salle de jeux
– Garderie
– Management Office
En Bref
- ID de la propriété :
- 775
- Statut du bien :
- Vente
- Type de bien :
- KEBE
- Emplacement :
- Corniche, Fann, cheikh anta diop, mermoz, Dakar, Senegal
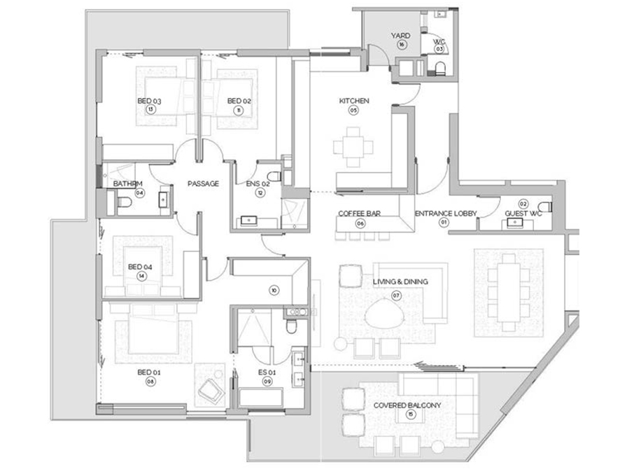
- Chambres :
- 4
- Salles de bains :
- 2
- Surface :
- 261.00 m²
- Aménagements :












